MAISON DE 97 M²+GARAGE+CAVE +JARDIN, 13012 – marseille
REF: 076
Caractéristiques principales :
- Prix de vente : 529 000€ (honoraires à la charge du vendeur)
- Localisation : 13012-Marseille, quartier Beaumont
- Type : Maison de ville T5 + cave +abri de jardin + garage
- Surface habitable : 97M2
- Surface totale au sol : 195 m² (offrant de nombreuses possibilités d’aménagement ou d’optimisation des espaces)
- Taxe Foncière : 566€
Description du bien en vente:
Maison de ville à révéler – Un projet au fort potentiel
Au cœur d’un environnement recherché, cette maison de ville représente une opportunité rare : celle de repenser un espace existant pour en faire une résidence moderne, personnalisée et à forte valeur ajoutée.
Dès l’entrée, un escalier structure le volume et annonce le potentiel de transformation.
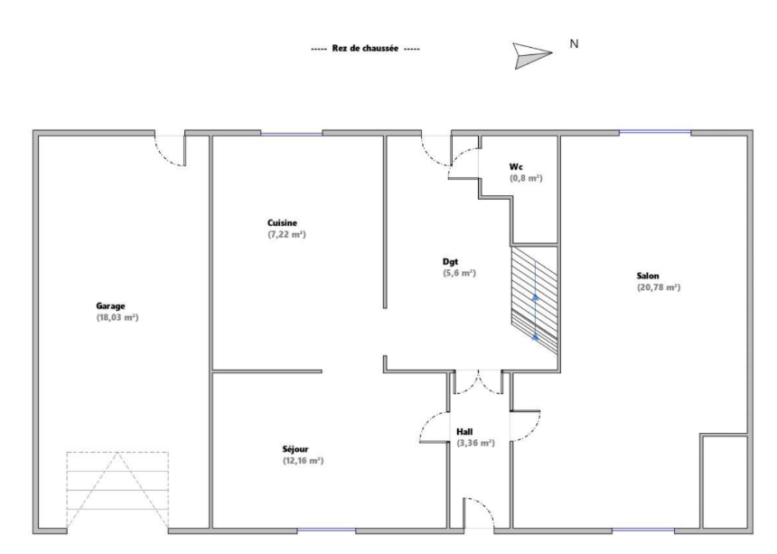
Le rez-de-chaussée comprend actuellement un salon , salle à manger et une cuisine séparée, configurés de manière à pouvoir être repensés en une grande pièce de vie ouverte, lumineuse et contemporaine.
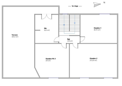
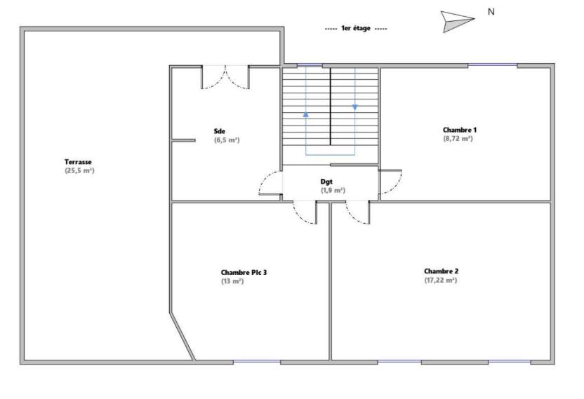
À l’étage, vous trouverez :
– Trois chambres aux volumes confortables
– Une salle d’eau
– Et un atout majeur : une grande terrasse, véritable prolongement extérieur, idéale pour créer un espace détente, un jardin suspendu ou un coin convivial.
Implantée sur un terrain d’environ 500 m², la propriété dispose également :
– D’un grand jardin qui offre un cadre rare, privilégié et généreux , avec un coin repas en pleine nature
– D’un garage, véritable atout confort au quotidien
– D’une cave, offrant un espace de stockage ou un potentiel d’aménagement complémentaire
Des travaux de rénovation sont à prévoir, mais ils représentent une opportunité stratégique de valorisation. La configuration actuelle permet d’envisager une redistribution intelligente des volumes et une modernisation complète du bien selon les standards actuels.
Cette propriété n’attend plus que vous pour écrire la suite de son histoire… de votre histoire!
- Date de réalisation du diagnostic : 14/01/2026
- Classe énergie : D Classe Climat : D
- Consommation énergétique: 202KWH/M²/AN
- Émission de gaz à effet de serre : 40Kg CO2/m²/an
- Montant estimé des dépenses annuelles d’énergie pour un usage standard : entre 1 860€ et 2 580€ /an.
- Prix moyens des énergies indexés sur les années: 2021, 2022,2023
- Les informations sur les risques auxquels ce bien est exposé sont disponibles sur le site géorisques https://www.georisques.gouv.fr