Terrain à bâtir, 412 m2, 13012 – marseille

REF: 069

Prestige contact Immo vous propose,  rare à la vente , un terrain plat à bâtir de 412 m² sur la Route d’Enco de Botte, dans le quartier prisé de Trois Lucs, dans le 12ème arrondissement de Marseille. 

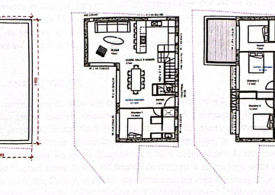
Terrain à bâtir avec possibilité de réalisation d’un projet comprenant:

  • Maison de 80 m² d’emprise au sol (146 m² habitables)

  • Piscine de 10 m²

  • Livraison clé en main

  • Projet global terrain et construction proposé à 650 000 €.

 

  • Prix de vente du Terrain : 360 000€  (honoraires à la charge du vendeur)
  • Localisation :  13012-Marseille, quartier Les Trois Lucs
  • Type : Terrain plat à bâtir
  • Surface : 412 M2

Contactez-nous dès maintenant pour organiser une visite et découvrir tout le potentiel de ce terrain !

 

 

  • Date de réalisation du diagnostic : 
  • Classe énergie :                     Classe climat :  
  • Consommation énergétique:  KWH/M²/AN
  • Émission de gaz à effet de serre :  Kg CO2/m²/an
  • Montant estimé des dépenses annuelles d’énergie pour un usage standard : 
  • Prix moyens des énergies indexés au : 
  • Les informations sur les risques auxquels ce bien est exposé sont disponibles sur le site géorisques https://www.georisques.gouv.fr